BATHVERSE

An office and showroom that represents Nippori Kako’s new face in Tokyo.

This space offers an immersive experience reminiscent of being in a bath, created through visual representations of water projected throughout the room and a setting made of reflective natural stone. Visitors can explore Nippori Kako’s decades of technology and expertise through a multi-faceted exhibition.

In the main area beyond the entrance, the act and experience of bathing are deconstructed and expressed through visuals and sounds of steam, flowing water, and rippling surfaces. These are reflected and echoed by natural marble and polished granite, offering visitors a sense of exhilaration and lightness—as if they are truly immersed in hot water.

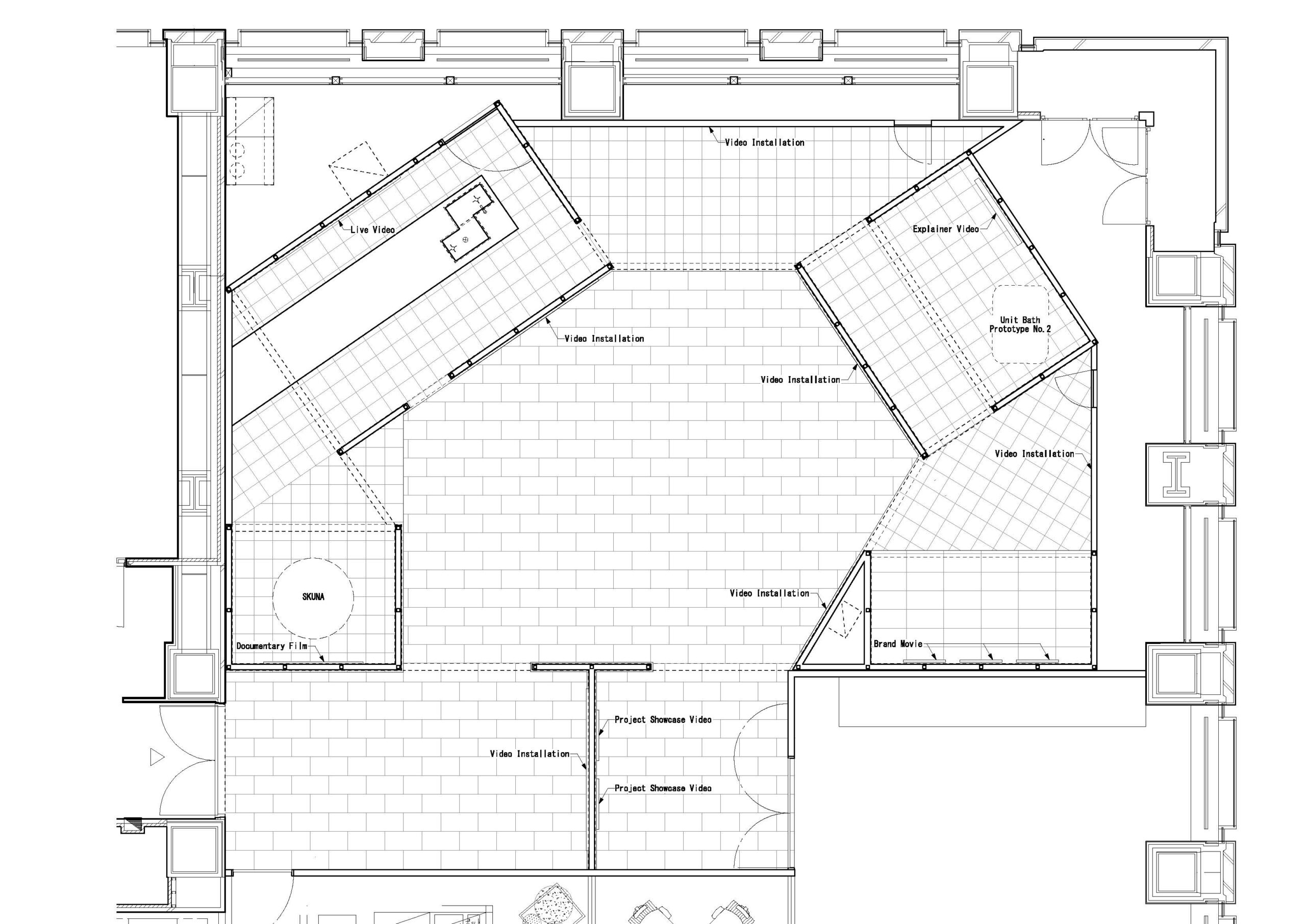
Outside the main space, a series of modular units—each designed based on the dimensions of a unit bath—are arranged in sequence. These units appear and disappear from view, allowing visitors to experience the history of bathing culture, the journey of Nippori Kako, the technical background of its products, and various presentations from multiple perspectives.

The spatial arrangement of the modular exhibits balances abstract spatial expression with tangible product displays. It redefines the concept of the unit bath as a spatial unit, aiming to create unique micro-worlds within limited spaces, much like a traditional Japanese tea room.

Materials are carefully selected: the main space features a floor of polished black granite, reflecting the projected visuals of water and producing a profound sense of immersion and serenity. The walls are clad with precisely finished marble panels, unifying the space and giving it a sculptural, monolithic presence.

BATHVERSE” is more than a product showroom. As a new communication hub, it embodies its unique concept through space, materials, and experiential design:
“Starting from the sensation of soaking in hot water, this is a new platform for creating and conversing about the future of bathing culture—where space, visuals, sound, and products converge.”

BATHVERSE

BATHVERSE(バスバース)

日ポリ化工の新たな東京の顔となるオフィス兼ショールーム。

部屋中に設置された湯を表現した映像とそれを反射する天然石の空間によって、まるで入浴しているかのような感覚に浸りながら、日ポリ化工が長年培ってきた技術や知見を多角的な展示により体験する空間である。

エントランスを抜けた先のメイン空間には、湯気や水流、水面の揺らぎの映像や音響によって、入浴するという行為や体験を分解して表現し、それを反射、反響させる天然大理石と本磨き天然御影石によって構成する事で、訪れた人々にまるで入浴しているかのような高揚感と浮遊感を感じさせる。

メイン空間の外側にはユニットバスのスケールをもとにデザインされた複数のユニットが連なっており、各ユニットがメイン空間から見え隠れしながら、来場者は入浴文化の歴史や日ポリ化工の歩み、製品の技術背景、プレゼンテーションなどを多角的に体験する事ができる。

ユニット化された展示コンテンツのボリューム配置は、抽象的な空間表現と具体的な製品展示を両立させるとともに、ユニットバスという空間単位を再構築し、茶室のように限られた空間に独自の世界観を作り出すことを狙い計画している。

素材はメイン空間床には本磨き仕上げの黒御影石を採用。湯を表現する映像が石の表面に反射し、深い没入感と静謐な雰囲気を生み出している。壁面には大理石を留め加工して使用し、空間を一体化させることで、彫刻のような塊としての存在感を演出している。

「BATHVERSE」は、新たな発信拠点として単なる製品展示にとどまらず、空間・素材・演出のすべてを通じて、「“湯に浸かる感覚”を出発点に、空間・映像・音・プロダクトが交差する、これからの風呂文化の創造と対話のための新たな拠点」というBATHVERSEの独自コンセプトが空間として表現されている。

プロジェクト名:BATHVERSE(バスバース)

Privacy Preference Center