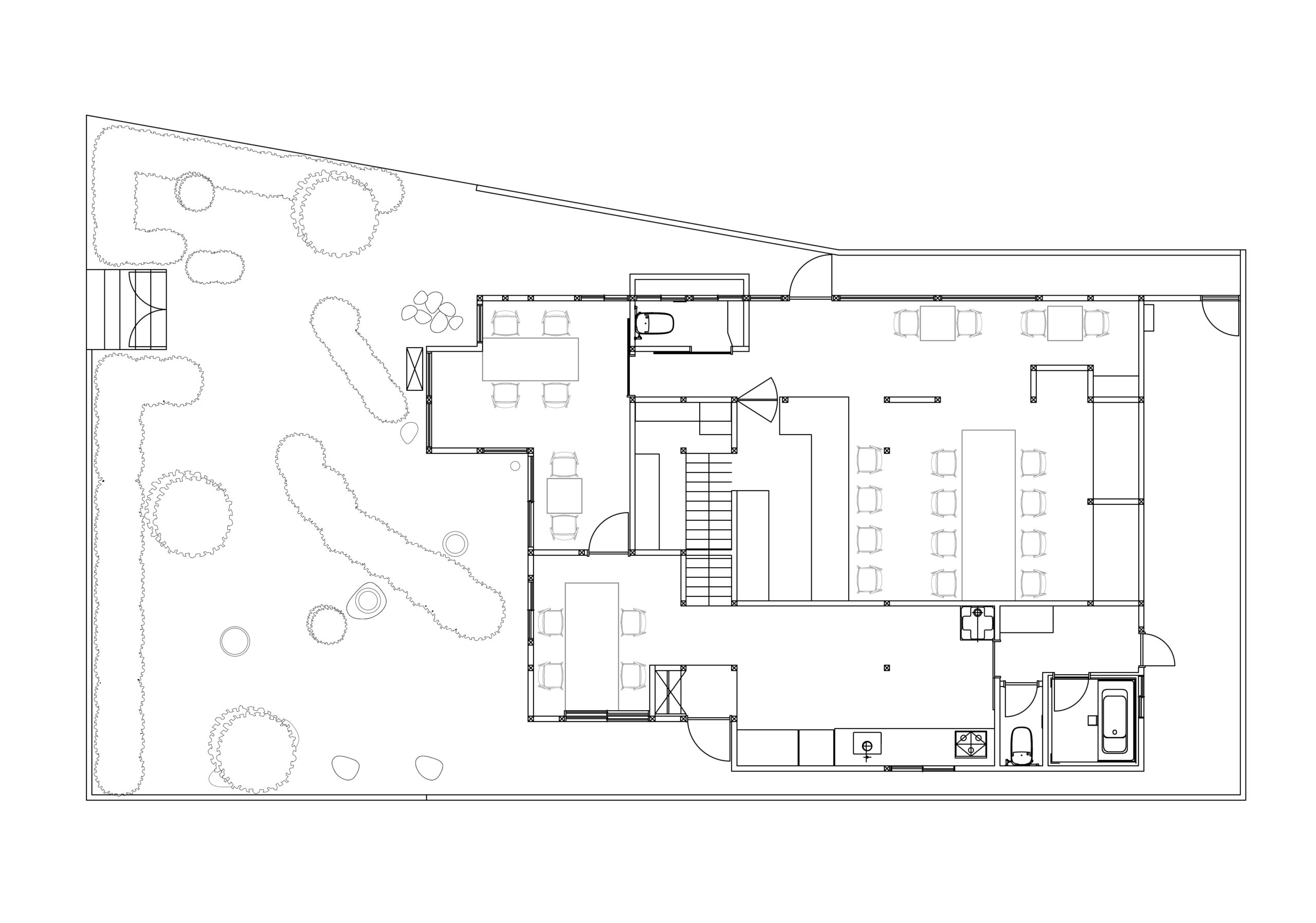
Shishigatani Cafe and Residence

An 80-year-old house in a quiet residential area was converted into a café and residence.
While matching the design of the existing Japanese-style room with the new floor plan, we considered where the old mud walls, pillars, ceilings, and transoms should remain and combined them with new materials and finishes to create a space where the old and the new intersect. The contrast in color and texture between the long-aged materials and the new materials accentuates the expression of each, creating a unique space.

Project name: Shishigatani Cafe and Residence

鹿ケ谷の店舗併用住宅

閑静な住宅街に建つ築80年の住宅をカフェ兼住宅にコンバージョンした。
既存の和室の意匠と新しい平面計画をすり合わせながら、古い土壁や柱、天井や欄間などを残す箇所を検討し、新しい素材や仕上げを組み合わせていくことで、古さと新しさが交わる空間を作り上げた。長い年月を刻んだ素材と新規の素材との色や質感のコントラストにより、それぞれの表情を際立たせ、唯一無二の空間が出来上がった。

プロジェクト名:鹿ケ谷の店舗併用住宅

撮影:オザキマサキ

Privacy Preference Center