Tremolare

Italian Restaurant in Nishiazabu, Tokyo

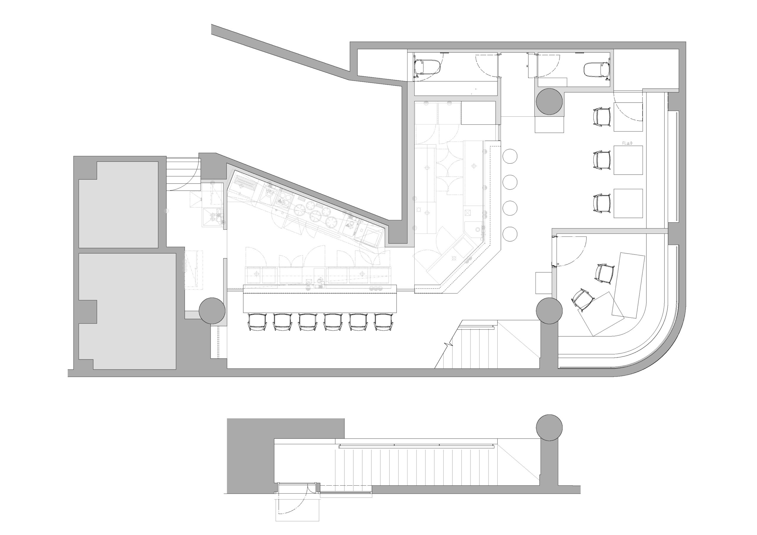
Opening the door and descending the stairs to the basement, the space looks like a quarry or a cave. The interesting relationship between the volumes of the structure itself, which we first saw in this place, and the sense of weight were shaped so as not to lose them.

Various shaped volumes made of concrete, stone, earth, and other heavy materials (high ceiling surface, low slanting ceiling volume, cylinders, rectangles, sawtooth shapes, etc.) cut through the basement and collide with each other. These volumes were finished with plastering that gives a sense of texture. The wall behind the counter has the look created by the removal of tiles. The space is composed of African teak counters and fixtures with natural materiality and lightness interwoven in the gaps between them. The wall behind the counter has the look created by the removal of the tiles.

The open kitchen extends throughout the restaurant, allowing diners to watch the chefs at work up close. The private rooms are made up of high arc-shaped ceilings and round walls, giving people a sense of centrality and enveloping unity.

In the gap where volumes collide, a place where one can enjoy a meal while feeling the liveliness of the kitchen has emerged.

Project name:Tremolare

Photographer::ad hoc Co., Ltd. Daisuke Shima

Tremolare

西麻布のイタリアンレストラン

ドアを開け地下に向かう階段を降りると、まるで採石場や洞窟のような空間が広がる。 この場所で最初に見えた躯体そのもののもつボリュームの関係性の面白さと重量感を失わないように形にしていった。

コンクリートや石や土などの重さを感じる素材でできた高い天井面や低く傾いて来る斜めの天井ボリューム、円柱、長方形、ノコギリ形など、様々な形のボリュームが地下を切り取り、ぶつかり、刺さりあってできた隙間に、アフリカンチークでできたカウンターや什器の持つ自然の素材感や軽さを織り交ぜて、一つの空間として構成している。カウンター背面の壁はタイルをめくったことでできた表情をそのまま活かした。

店内に広がるオープンキッチンは、シェフたちの動きを間近で見ることができる。個室は弧を描いた高い天井と丸い壁面によって、空間に入った人々に中心性と包み込まれるような一体感を感じさせる。

ぶつかる塊の隙間に、厨房の活気を感じながら食事を楽しめる場が現れた。

プロジェクト名:Tremolare

撮影:株式会社adhoc 志摩大輔

Privacy Preference Center